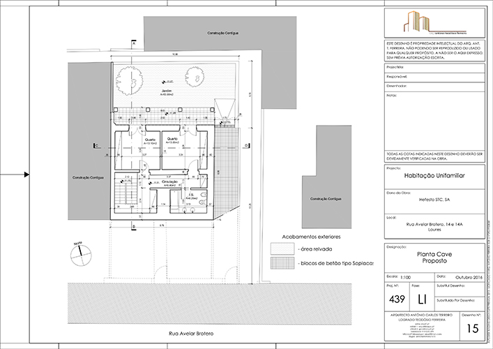
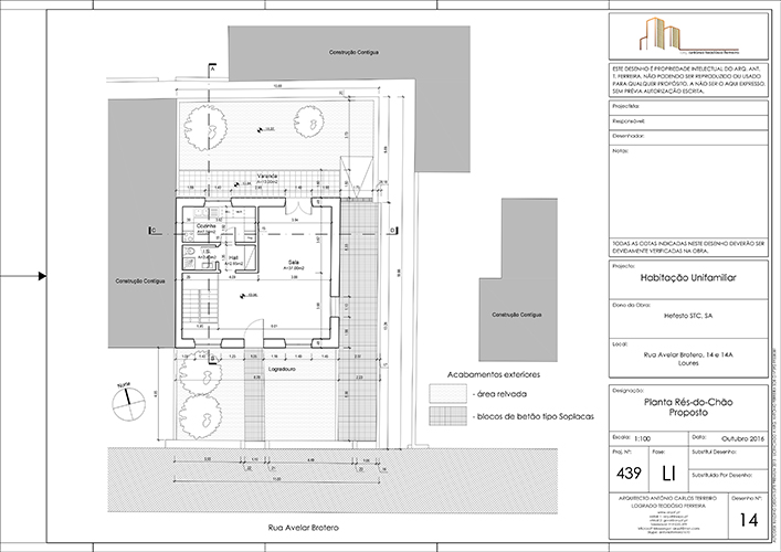
Moradia Unifamiliar
Projectos
2016
Local
Loures
Cliente
projecto realizado para
Hefesto STC, SA
Informações
Projecto de Arquitectura
Equipa
Arq. António Teodósio Ferreira
Loures
projecto realizado para
Hefesto STC, SA
Projecto de Arquitectura
Arq. António Teodósio Ferreira