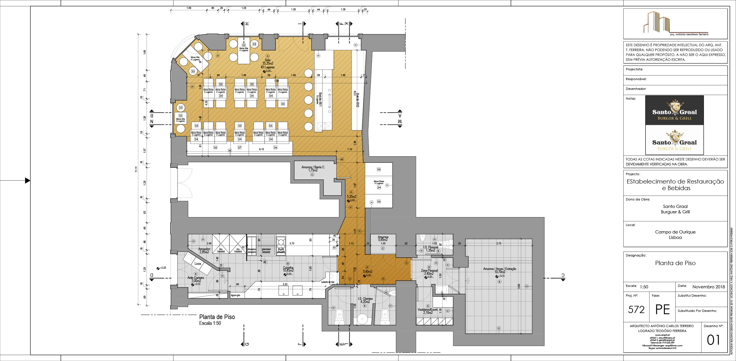
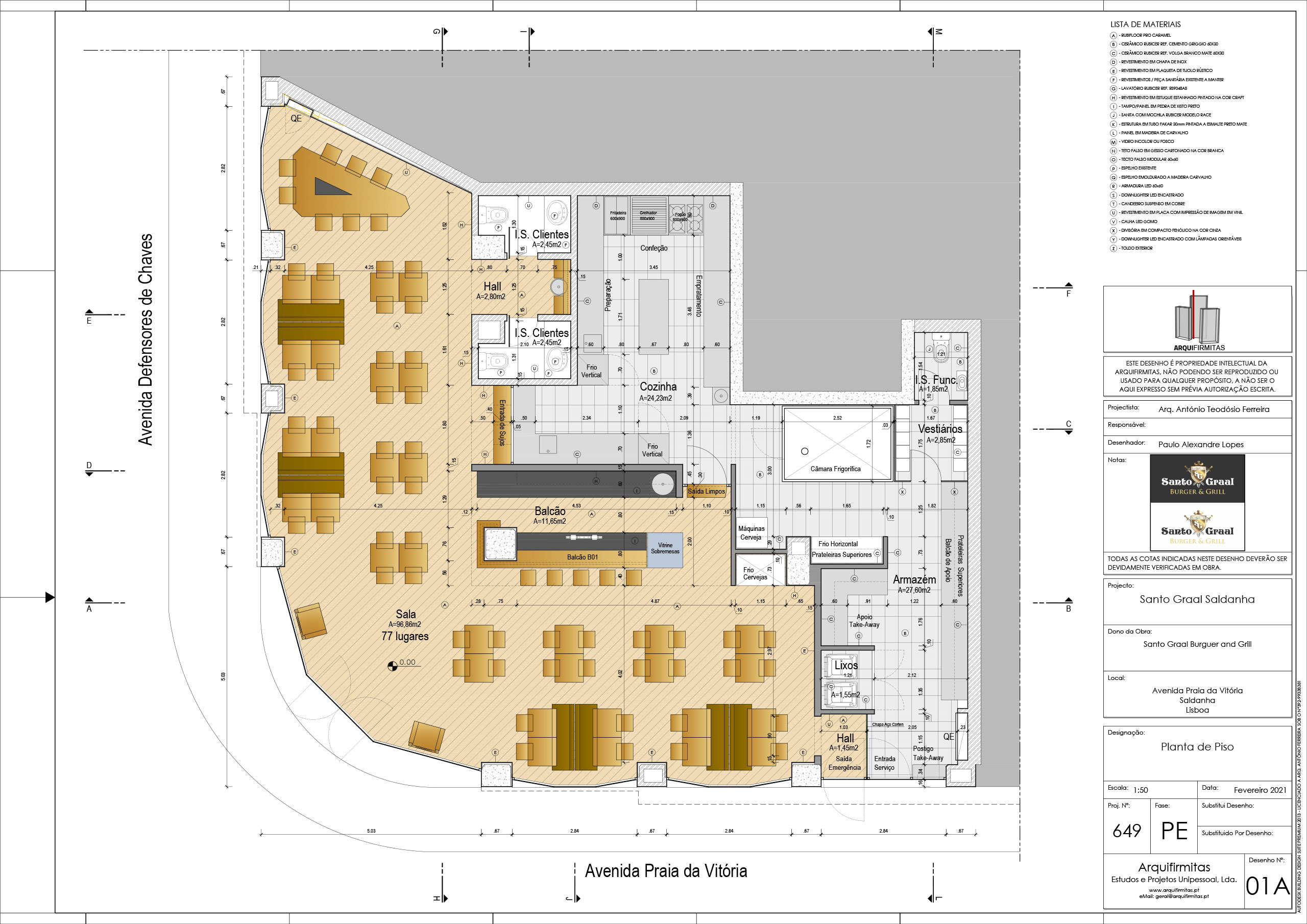
Santo Graal
Projectos
2021
Local
Lisboa - Campo de Ourique, Ajuda e Saldanha
Cliente
projeto realizado para Holy Grail, Lda.
Informações
Projecto de Arquitectura
Equipa
Arq. António Teodósio Ferreira
Paulo Alexandre Pereira Lopes



















